Bahnhof:

 km 22,0 / Höhe ü. N.N.: 174,945 m

 

"Auf Gleis 3 fährt ein: der Personenzug 1715 aus Bonn zur Weiterfahrt nach Euskirchen!

 Die Abfahrt des Zuges ist um 10.42 Uhr! Bitte Vorsicht an der Bahnsteigkante!"

      

                 Der Bahnhof Rheinbach vor 1910 und der Errichtung des hölzernen Stellwerksanbaues auf dem Hausbahnsteig

                                                                      (Abbildung: Stadtarchiv Rheinbach) 

 

Der Bahnhof Rheinbach wurde zusammen mit sämtlichen Bahnhöfen der Strecke Bonn - Euskirchen (bis auf Witterschlick) während des Baues der Strecke in den Jahren 1878 bis 1880 angelegt.

 

Auch dieses Gebäude stammt aus der Feder des Architekten Johannes `Jodocus´ Richter (geb. 01. April 1842 - gest. 31. Dezember 1889). Allerdings nach einem eigenen Plan - obwohl es den Gebäuden von Odendorf und Kuchenheim sehr ähnelt. Dieses Empfangsgebäude - dessen Spiegelbildliches Gegenstück übrigens in Meckenheim entstand - ist ein wenig größer als die oben genannten Gebäude und hat dadurch auch eine etwas andere Aufteilung der Räume.

 

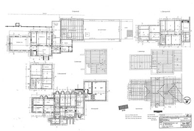
Ein Teil der Rheinbacher (und Meckenheimer) Grundrisse.

(Quelle: Architekt Baumann-Drimborn, Rheinbach)

 

Das Rheinbacher Empfangsgebäude ist, neben dem in Meckenheim stehenden, der einzige Ziegelbau aus der Anfangszeit der Bahnstrecke, der noch weitestgehend im Originalzustand erhalten ist und deshalb heute auch zu Recht unter Denkmalschutz steht.

 

 

Vor einiger Zeit wurde das ehrwürdige - inzwischen über 130 Jahre alte - Haupt-Gebäude von einem Privatmann aus dem Swisttaler Ortsteil Essig erworben und mühevoll Mustergültig restauriert! So wurden zum Beispiel die oben auf dem Bild deutlich sichtbaren großen Fenster im Erdgeschoss wieder hergestellt und auch die Fenster- bzw. die Tür im ehemaligen Gaststättenteil zum Bahnsteig hin wurden wieder geöffnet.

 

   

Von der Gleisseite aus (Mai 2010).

 

Von der Strassenseite aus (Mai 2010).

 

   

Der ehemalige Wartesaal 2. Klasse (Mai 2010).

 

Die ehemalige Bahnhofsgaststätte -

die Tür befand sich ursprünglich im mittleren Bogen

(Mai 2010).

Und seit dieser umfangreichen Restaurierung des Gebäudes - bei der es komplett entkernt wurde - gibt es im Empfangsgebäude von Rheinbach sogar wieder Fahrkarten zu kaufen! Womit er (neben Bonn und Euskirchen) der einzige Bahnhof an der Strecke ist, wo dies noch möglich ist. Nach den Renovierungen zog nämlich die RVK (Regional Verkehr Köln) mit einer Verkaufsstelle in den ehemaligen Gaststättenteil ein.

 

Das neue RVK KundenCenter (August 2013).

 

Der Verkauf und die folgende Restaurierung des Hauptgebäudes erfolgte im übrigen eine geraume Zeit nachdem dies schon mit dem ehemaligen Schuppenteil erfolgte: in den ursprünglichen (direkt an das Hauptgebäude angrenzenden) Teil des Güterschuppens zog im Erdgeschoss die Filliale einer Bäckereikette - mit kleinem Café - ein, während unter dem Dach eine Wohnung entstand. Im später errichteten (flacheren) Anbau des Schuppens fand dann noch eine Ballettschule ein neues Zuhause.

 

Auch der Bahnhof Rheinbach und sein Umfeld erfuhren über die Jahrzehnte ihres Bestehens natürlich regelmäßige Veränderungen und Umbauten.

 

Beinahe wäre er in den Jahren vor dem ersten Weltkrieg sogar zu einem regelrechten Kreuzungsbahnhof geworden, wenn die geplante und auch schon im Bau begriffene "Strategische Bahn" - heutzutage eher unter der Bezeichnung: "Die Unvollendete" bekannt - tatsächlich fertiggestellt worden wäre! Diese hätte von Liblar über Rheinbach - hier die Strecke Bonn- Euskirchen kreuzend - nach Dernau in das Ahrtal führen sollen. Ein Stück des Bahndammes dieser Strecke ist in Rheinbach auch heute noch immer sichtbar: fährt man mit dem Zug aus Rheinbach in Richtung Bonn ab, beginnt kurz nach der Brücke "Gymnasiumstrasse" auf der in Fahrtrichtung linken Seite, ein leicht immer weiter ansteigender Hügel: die Auffahrt zum ehemaligen Überführungsbauwerk auf Höhe der heutigen A61.

 

Zu den Dingen die sich - wie in allen anderen Bahnhöfen der Strecke so natürlich auch - im Bahnhof Rheinbach veränderten, gehört selbstverständlich die Gleisanlage.

 

Die aktuellsten Arbeiten an den Gleisen finden seit Ende August 2013 statt. Seitdem wird das Wendegleis (Gleis 4) für die Verstärkerzüge des Viertelstundentaktes (HVZ) komplett erneuert und überarbeitet (bisher ein in Richtung Meckenheim neben Gleis 3 gelegenes Stumpfgleis). Dazu gehört auch, dass es mit mehreren Weichenverbindungen in Richtung der Bahnsteige an die beiden eigentlichen/ restlichen Bahnhofsgleise angeschlossen wird. Damit werden später Zugfahrten von und zu jedem Gleis möglich sein.

 

   

30.08.2013: Blick in Richtung Bahnhof auf die Baustelle.

 

Die Gegenrichtung: Bahnhofseinfahrt aus Richtung Meckenheim.

 

Eine weitere - für das Jahr 2014 - geplante Baumaßnahme ist, die beiden bestehenden Bahnsteige zu erhöhen, um dadurch - wie in den restlichen Bahnhöfen/ Haltepunkten der Strecke - endlich auch in Rheinbach niveaugleiche Einstiegsmöglichkeiten in die Züge zu schaffen.

 

(Weitere Texte und Bilder folgen!)

 

 


 

Bitte nutzen Sie Ihren Aufenthalt auch, um hier auszusteigen:

 

www.bahnhof-rheinbach.de

 

Axel Strell | Alle Rechte vorbehalten, Copyright 10/2009