Bahnhof:

km 27,6 / Höhe ü. N.N.: 170,114 m
"Auf Gleis 3 fährt ein: der Personenzug aus Bonn zur Weiterfahrt nach Euskirchen! Die Abfahrt des Zuges ist um 10.48 Uhr"

Der Odendorfer Bahnhof im Jahre 1912.
(Abbildung aus: "Swisttal - Bilder aus früherer Zeit" von Dr. W. Matanovic, 1985)
Der Bahnhof Odendorf wurde zusammen mit dem Bau der Bahnstrecke von Bonn nach Euskirchen in den Jahren 1878 bis 1880 etwas außerhalb des eigentlichen Dorfkerns angelegt.
Auf dieser heutigen Luftaufnahme ist das Bahnhofsgelände und die Bahnstrecke schräg im oberen Bilddrittel (von links oben nach rechts unten) zu erkennen. Der zum Zeitpunkt des Bahnbaues vorhandene Ortskern verlief entlang der Ohrbach bzw. Odinstrasse.
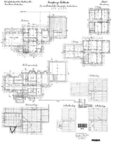
Das Empfangsgebäude entstand nach Plänen des Architekten Johannes `Jodocus´ Richter ( geb. am 01. April 1842 - gest. am 31. Dezember 1889). Aus dessen Feder stammen auch die Pläne für die restlichen Bahnhofsgebäude der Strecke, bis auf den Bahnhof Witterschlick, dieser entstand erst um 1903. Die Pläne für das Odendorfer Empfangsgebäude wurden ebenfalls für die Gebäude in Kuchenheim und (Bonn-) Duisdorf verwendet, so daß sich bei Eröffnung der Strecke im Juni 1880 diese drei Bahnhofsgebäude nahezu bis aufs Haar glichen.
 | |  |
Seitenansichten (Blatt 1)
(Abbildung: Stadtarchiv Euskirchen) | | Grundrisse (Blatt 2)
(Abbildung: Herr Notarius, FDL. Bhf. Odendorf) |
Im Laufe der Jahrzehnte erfolgten am Bahnhofsgebäude von Odendorf - wie an nahezu allen anderen Bahnhöfen der Strecke - mehrfach Um- und Anbauten. Etwa 1910 kam auf dem Hausbahnsteig, mit dem Einbau von Signalen an der Strecke, ein hölzernes Stellwerksgebäude hinzu. Später (in den 30er Jahren)wurde das erste Stockwerk zwischen dem Haupthaus und dem Güterschuppen, sowie ein Straßenseitiger Anbau ergänzt. Um 1939 wurde das hölzerne Stellwerk gegen einen gemauerten Anbau mit etwas größeren Abmessungen ersetzt. Dieser wurde schließlich 1958 abgerissen und das Stellwerk schlußendlich in das Empfangsgebäude und die umgestalteten Dienstäume integriert.
 | |  | |  |
Hölzernes Stellwerk
und fehlendes 1. Stockwerk. (Photo: herr Knoch, Odendorf) | | Der gemauerte Stellwerksanbau etwa 1946.
(Photo: Herr A. Müller, Odendorf) | | Nach dem Um- und Einbau in das EG, Photo aus dem Jahre 1974.
(Photo: Herr Lutterbeck, Odendorf) |
Der (Teil-) Abriß, mit dem anschließendem Umbau in den heutigen "Zustand", fand schließlich zwischen Mai und August 1974 statt. Der letzte große Umbau der Gleisanlagen fand im Mai 1986 mit dem Ausbau von mehreren Weichen und dem Rückbau von Gleis 1 statt. Seit diesem Zeitpunkt besitzt der Bahnhof Odendorf nur noch zwei Gleise (welche sinnigerweise als Gleis 2 und 3 benannt werden . . .)
Für das, in seiner Grundsubstanz nun über 130 Jahre alte, Odendorfer Bahnhofsgebäude standen in den nächsten Jahren aber noch weitere (im wahrsten Sinne des Wortes) einschneidende Veränderungen an.

Bahnhof Odendorf im April/ Mai 1974.
(Photo: Herr Lutterbeck, Odendorf)
 |
Bahnhof Odendorf im Jahre 2005. (Photo: A.St./ D.M.) |
Es ist kaum zu glauben, das auf den beiden Photos das selbe Gebäude zu sehen sein soll, aber wenn man ganz genau hinsieht, ist es noch eindeutig zu erkennen.
Im Oktober 2010 wurde mit dem Bau eines neuen (zweiten) Außenbahnsteiges begonnen, welcher im Mai 2011 zu großen Teilen fertiggestellt war, aber erst mit Inbetriebnahme des ESTW in Euskirchen im September des Jahres 2011 der Benutzung übergeben wurde. Seit dem 25. Februar 2011 schließlich gehört, mit der an diesem Tage stattgefundenen offiziellen Schlüsselübergabe, das Empfangsgebäude des Bahnhofes Odendorf inklusive dem umliegenden Gelände der Gemeinde Swisttal.
In dem ehrwürdigen Gebäude sollte nun nach dem Willen der Gemeinde ein Kiosk mit Gastronomie einziehen.
Seit dem Anschluß der Strecke Bonn - Euskirchen an ein elektronisches Stellwerk (ESTW) in Euskirchen am 17. bis 18. September 2011 gab es in Odendorf keinen Fahrdienstleiter mehr. Am gleichen Wochenende wurden (wie an der gesamten Strecke) die alten Formsignale im Bahnhof abgebaut und die neuen Lichtsignale in Betrieb genommen.
Nachdem die Stellwerkseinrichtungen seit gut zwei Monaten nicht mehr verwendet wurden, wurden diese schließlich in der Woche vom 07. bis 11. November 2011 komplett ausgebaut, zerlegt und abtransportiert. Damit ist auch das Stellwerk "Of" ein Stück unwiederbringlich verschwundener Ortsgeschichte . . .
 | |  | |  |
Die Gitter- und Holzpaletten mit teilweise demontierter Stellwerkstechnik.
| | Es wurde immer weniger . . .
| | Zerlegung . . .
|
Kurz nachdem die Bahn AG die nicht mehr benötigten Stellwerkseinrichtungen ausgebaut hatte, begann die Gemeinde Swisttal damit, das Innere des Gebäudes den neuen Bedürfnissen anzupassen. An Stelle des ehemaligen (vor garnicht allzu langer Zeit zugemauerten) Fahrkartenschalters, trat eine Tür und im ehemaligen Wartebereich wurden neue Wasser- und Elektro-Leitungen verlegt und schließlich eine Imbisseinrichtung montiert. Rein äußerlich wurde die Nutzungsänderung durch das Anbringen großer Namensschilder deutlich gemacht und auch ein neuer Küchenabzug (Schornstein) aus Edelstahl wurde auf der Strassenseitigen Gebäudefront installiert. Am 03. März 2012 nahm dann schließlich der "Pizza Pan Express" seinen Betrieb auf (sinnigerweise mit einem Schweizer Elektrotriebwagen im Logo . . .).
Am 05. November 2012 wurde mit der Einrichtung der Baustelle für die geplante Unterführung im Bahnhof Odendorf, sowie mit den ersten vorbereitenden Arbeiten begonnen, nachdem schon etwa einen Monat vorher das Baustellenschild am Anfang der Bahnhofstrasse aufgestellt worden war.